建物詳細
上高田二丁目戸建
アクセス・リアルティー 当社管理物件
物件情報は代表的なお部屋を掲載しております。
建物内の別の間取りでも空室がある場合がございます。
ご指名物件の空室待ちなども受付けておりますので、お電話かメールにてスタッフまでお申付下さい。
※写真や図と現況が異なる場合は現況を優先させていただきます。
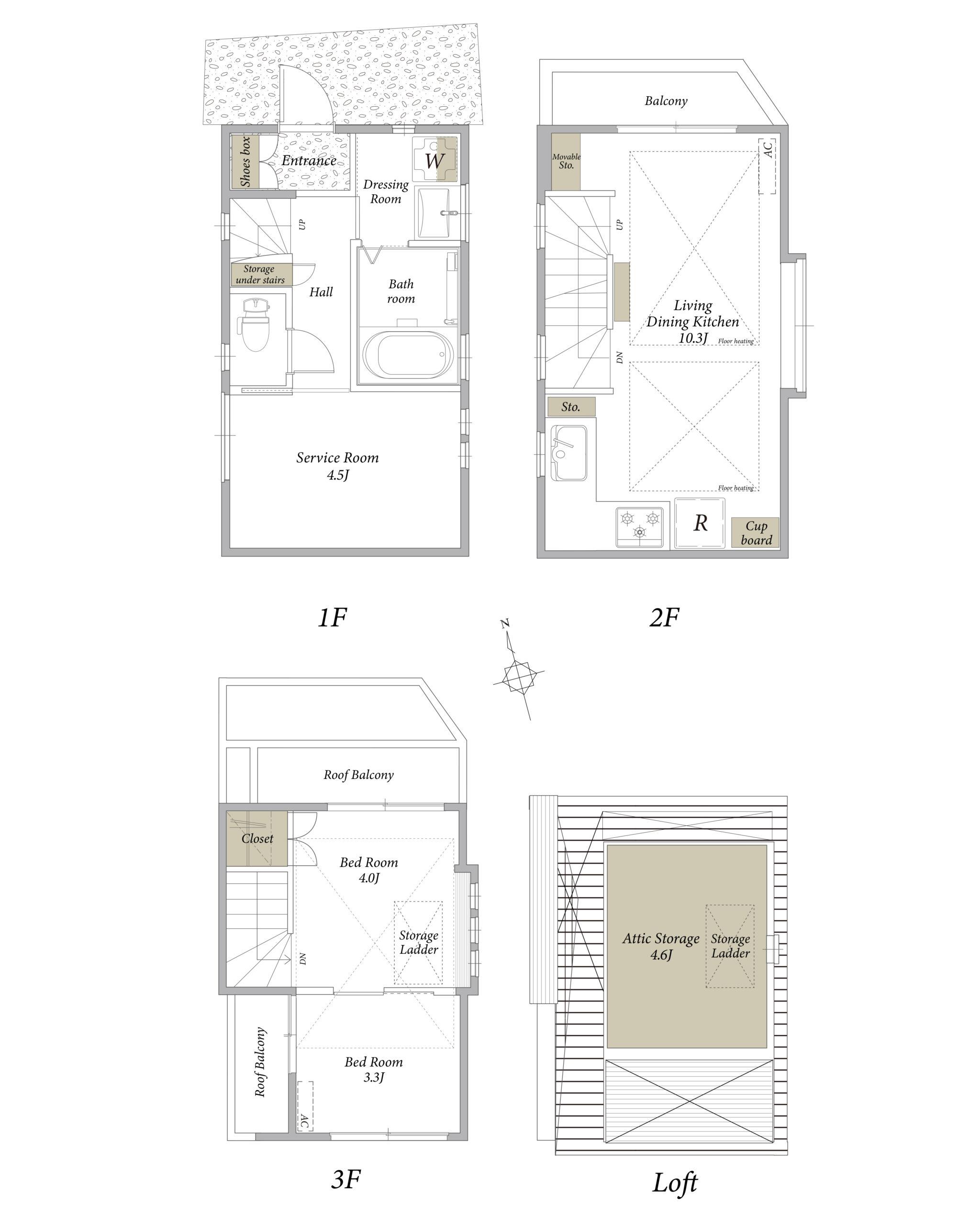
◆戸建賃貸 3階建【2SLDK】ロフト付き |中野区
ファミリーにおすすめの戸建賃貸物件。L字型システムキッチン、独立洗面台、床暖房など設備充実。全居室に収納も整います。ロフトを含むすべての居室に窓があります。スーパー至近、新宿までのアクセスも良好の立地。
上高田二丁目戸建の賃貸物件一覧
並び替え
賃料(高い順)
賃料(安い順)
専有面積(広い順)
専有面積(狭い順)
現在、空室はありません。
現在、空室はありません。
現在、空室はありません。
現在、空室はありません。
上高田二丁目戸建の物件概要・設備
- 物件種別
- 一戸建て
- 物件名
- 上高田二丁目戸建
- 所在地
-
〒164-0002
東京都中野区上高田2-11-10
- 交通
-
西武新宿線『新井薬師前』駅より徒歩8分
JR中央線『中野』駅より 徒歩16分
JR総武線『中野』駅より 徒歩16分
東京メトロ東西線『中野』駅より 徒歩16分
- 近隣情報
-
- スーパー:まいばすけっと 上高田2丁目店 290m
- スーパー:コモディイイダ 中野店 300m
- 中学校:大妻中野中学校・高等学校 280m
- その他学校:キッズガーデン中野上高田 110m
- 病院:渋谷医院 160m
- 公園:中野区立上高田二丁目公園 180m
- 賃料
- 200,000円 〜200,000円
- 管理費/共益費
- 間取り
- 2SLDK 〜2SLDK
- 専有面積
- 53.8㎡ 〜53.8㎡
- 総戸数
- 1戸
- 築年月
- 2013年 7月
- 建物構造
- 木造
- 建物階建
- 地上3階
- 駐車場
- なし
- バイク置場
- なし
- 駐輪場
- あり
- 駐輪場タイプ
- 無料
- 駐輪場料
- 設備
- 築15年以内、築20年以内
- 環境
- 2沿線利用可、2駅利用可、3沿線以上利用可、スーパー近、駅徒歩10分以内
アクセスマップ
Google MAP
ストリートビュー